VERMIETET – Luftige 3 Zimmer Altbauwohnung in Altsendling
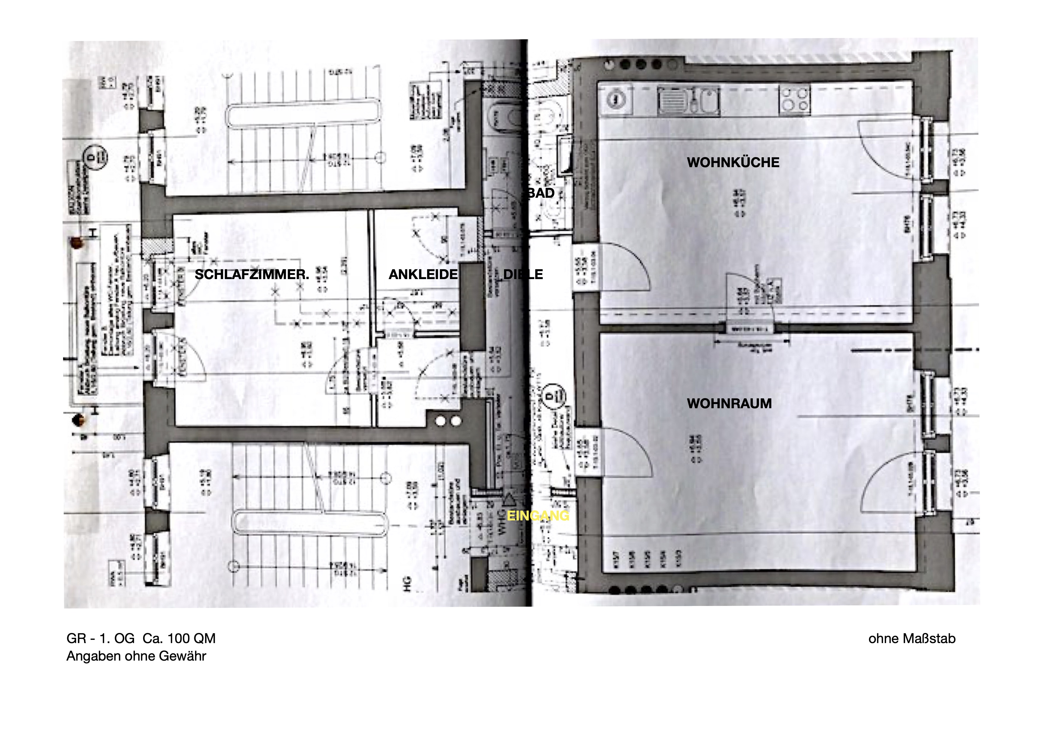
Wunderschöne Altbauwohnung mit 3 Zimmern und 2 Balkonen. Das Gebäude aus dem Jahre 1910 steht unter Denkmalschutz und wurde vor wenigen Jahren kernsaniert. Die Wohnung liegt im 1. Stock des repräsentativen Hauses (mit Lift). Der Hauseingang und das Treppenhaus zeigt, mit wieviel Gespür und Geschmack dieses schöne Ensemble, bestehend aus zwei Gebäuden, saniert wurde. Die Wohnung ist puristisch, jedoch mit der richtigen Prise Gemütlichkeit möbliert. Die Deckenhöhe von 3,80 m, ausgefallene Lampen und wenige ausgewählte Accessoires schaffen eine Atmosphäre von Leichtigkeit und Ruhe. Der Eingangsbereich ist geräumig. Rechter Seite gehen Türen zum Wohnzimmer und zur Wohnküche ab – auf der linken Seite befindet sich der Schlaftrakt mit Ankleide. Geradeaus führt eine Türe ins moderne Bad. Im Wohnzimmer findet sich ein edles Sofa von Knoll. Ergänzt wird es durch einen Sessel (Butterfly Chair) und einen Couchtisch. Ein Highboard von USM Haller mit Klappfächern kann zum kleinen Arbeitsplatz umfunktioniert werden. Eine große Flügeltüre trennt den Wohnbereich von der Wohnküche. Hier steht aktuell ein runder Esstisch mit 4 Stühlen. Die Küchenzeile ist perfekt ausgestattet und hat dunkle matte Fronten. Ein schmaler französischer Balkon kann sowohl von Küche wie auch Wohnbereich betreten werden. Das Schlafzimmer auf der linken Seite wird durch einen Vorraum, ausgestattet mit Regalen betreten. Hier geht auch eine Tür zur Ankleide ab. Das Schlafzimmer verfügt über ein Doppelbett von 1,80 x 2 m, einen Sessel sowie eine Kommode. Durch zwei Türen gelangt man auf den überdachten Balkon zum ruhigen grünen Innenhof. Im Bad wurden Feinsteinzeugfliesen an Wänden und Boden verarbeitet. Es bietet eine Badewanne, Waschbecken, Handtuchwärmer und WC. Eine Wandgarderobe und eine Bank ergänzen den Eingangsbereich. Bodenbelag: schöner aufbereiteter Fischgrät Parkettboden english Beautiful old building apartment with 3 rooms and 2 balconies. The building from 1910 is a listed building and was renovated a few years ago. The apartment is located on the 1st floor of the representative house (with elevator). The house entrance and the staircase show with how much flair and taste this beautiful ensemble, consisting of two buildings, was renovated. The apartment is furnished puristically, but with the right pinch of coziness. The ceiling height of 3.80 m, fancy lamps and few selected accessories create an atmosphere of lightness and tranquility. The entrance area is spacious. On the right side doors lead to the living room and kitchen – on the left side is the bedroom wing with dressing room. Straight ahead a door leads to the modern bathroom. In the living room there is a noble sofa by Knoll. It is complemented by an armchair (Butterfly Chair) and a coffee table. A highboard by USM Haller with folding compartments can be converted into a small workplace. A large double door separates the living area from the kitchen. Here is currently a round dining table with 4 chairs. The kitchenette is perfectly equipped and has dark matte fronts. A narrow French balcony can be accessed from both the kitchen and living area. The bedroom on the left side is entered through an anteroom, equipped with shelves. Here also leaves a door to the dressing room. The bedroom has a double bed of 1.80 x 2 m, an armchair and a chest of drawers. Through two doors you can access the covered balcony to the quiet green courtyard. In the bathroom, porcelain stoneware tiles were processed on the walls and floor. It offers a bathtub, sink, towel warmer and toilet. A wall coat rack and a bench complete the entrance area. Flooring: beautiful reconditioned herringbone parquet floor
| Immobilie | Sonstiger Wohnungstyp |
|---|---|
| Wohnfläche | ca. 100 m² |
| Zimmer | 3 |
Ausstattung
Wohnzimmer mit Sofa, Sessel, Highboard, Couchtisch
Schlafzimmer mit Doppelbett 180 x 200, Sideboard, Sessel, Garderobe
Wohnküche mit Esstisch mit 4 Stühlen, Cerankochfeld 90 cm Breite, Backofen 90 cm Breite, freistehende Kühl-Gefrierkombination
Ankleide mit Regalen und Schuhboxen
Bad mit Badewanne, Waschbecken, Handtuchtrockner, WC
Eingangsbereich mit Garderobe und Bank
Balkon 1
Balkon 2 überdacht
Rollläden in Wohnbereich und Küche
Jalousien im Schlafzimmer
Aufgrund der Größe der Küche ließe sich ohne großen Aufwand ein Wohnbereich mit offener Küche gestalten, was ein zweites Schlafzimmer im aktuellen Wohnzimmer möglich machen würde.
english
Living room with sofa, armchair, highboard, coffee table
Bedroom with double bed 180 x 200, sideboard, armchair, wardrobe
Kitchen with dining table with 4 chairs, ceramic hob 90 cm wide, oven 90 cm wide, free standing fridge-freezer
Dressing room with shelves and shoe boxes
bathroom with bathtub, washbasin, towel dryer, WC
Entrance area with wardrobe and bench
balcony 1
Balcony 2 covered
Shutters in living area and kitchen
Blinds in the bedroom
Due to the size of the kitchen, a living area with an open kitchen could be created without much effort, which would make a second bedroom possible in the current living room.
Lage
Im schönen alten Sendling nahe Gotzinger Platz gelegen. Hier gibt es alles für den täglichen Bedarf wie auch hübsche Restaurants und Cafes. Der Flaucher an der Isar ist mit dem Fahrrad in wenigen Minuten zu erreichen. Die Wohnung liegt sehr ruhig in einer Sackgasse ohne Durchgangsverkehr. Ca. 5 Minuten zur U3/U6 Implerstr. english Located in the beautiful old Sendling near Gotzinger Platz. Here you can find everything for daily needs as well as nice restaurants and cafes. The Flaucher on the Isar can be reached by bike in a few minutes. The apartment is very quiet in a dead end street without through traffic. Approx. 5 minutes to the U3/U6 Implerstr.
Sonstiges
Internet Flatrate in Miete enthalten
Personenaufzug vorhanden
GEZ wird vom Mieter direkt bezahlt
english
Internet flat rate included in rent
Passenger elevator available
GEZ is paid directly by the tenant
